top of page

Create Your First Project
Start adding your projects to your portfolio. Click on "Manage Projects" to get started
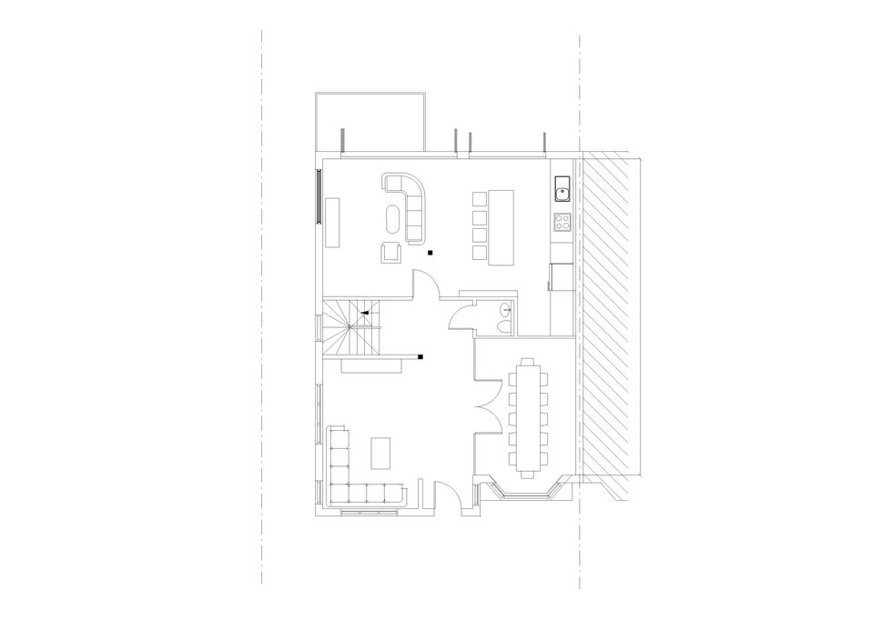
Holders Hill Road
Project type
Internal Alterations
A project at Holders Hill Road, creating open, interactive spaces through internal alterations. This project showcases TKR Global Ltd's expertise in turning visions into architectural masterpieces, enabling clients to customise their spaces.






bottom of page

